Budapest XIII. kerület, Újlipótváros
Tégla lakás
Ár
41,50 millió Ft
Alapterület
27 m2
Állapot
Felújított
Szobák száma
1
Leírás
Felújított, galériás stúdiólakás Újlipótváros szívében!
Újlipótvárosban, a Visegrádi utcában eladó egy 20 m²-es, 7 m²-es galériával kialakított, felújított, klimatizált, teljesen bútorozott és gépesített stúdiólakás, egy rendezett, liftes, téglaépítésű társasház 4. emeletén.
Az ingatlan belső udvarra néz, így csendes, mégis városi környezetet biztosít, a galériás kialakításnak köszönhetően jól kihasznált, élhető terekkel rendelkezik, gázcirkó fűtéssel felszerelt, a teljes berendezés a vételár részét képezi, ezért azonnal költözhető vagy bérbe adható.
A lakás egy négyemeletes, karbantartott társasházban található, fenntartási költségei kedvezőek, a közös költség 11.000 Ft havonta, a rezsi fogyasztás szerint alakul, átlagosan körülbelül 15.000 Ft.
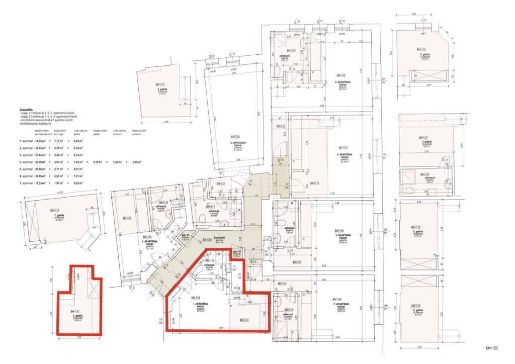
Az ingatlan tehermentes, osztatlan közös tulajdon, ügyvédi megosztással, két nagyobb lakásból kialakított, összesen hétlakásos kialakítás részeként jött létre, az alaprajzon pirossal jelölve egyértelműen beazonosítható, hogy pontosan melyik lakás kerül értékesítésre.
Banki hitel is felvehető rá, de otthon start nem.
Elhelyezkedése kiváló, a közelben metró, villamos, a Nyugati pályaudvar, bevásárlóközpont, parkok és piac is rövid sétával elérhető, a parkolás az utcán, fizetős övezetben megoldott.
Elsősorban azoknak ajánlom, akik biztos helyen szeretnék tudni a pénzüket, akár befektetésnek, akár saját otthonként képzelik el ezt az ingatlant.
Paraméterek:
Ingatlan állapota
Felújított
Építés éve
1950 előtt
Komfort
Összkomfortos
Emelet
4
Épület szintjei
6
Belmagasság
3 m-nél magasabb
Légkondicionáló
Van
Fürdő és wc
Egy helyiségben
Tájolás
-
Lift
Van
Kilátás
Udvari
Kertkapcsolatos
-
Tetőtér
Nem tetőtéri
Parkolás
Utca, közterület
Fenntarthatóság:
Közös költség
11 000 Ft/hó
Rezsi költség
15 000 Ft/hó
Átlagos áramfogyasztás
-
Átlagos Gázfogyasztás
-
Energetikai tanúsítvány
-
Fűtés
Gázkazán
Szigetekés
-
Szentgyörgyvölgyi Ruben
- +36 20 400 6247
Kérdése van?
Ingyenes konzultációnk keretein belül minden kérdésére választ kaphat! Foglaljon most.






