Budapest II. kerület, Véka utca
Tégla lakás
Ár
199,99 millió Ft
Alapterület
87 m2
Állapot
Felújított
Szobák száma
3
Leírás
Panorámás tetőterasz a II. kerületben!
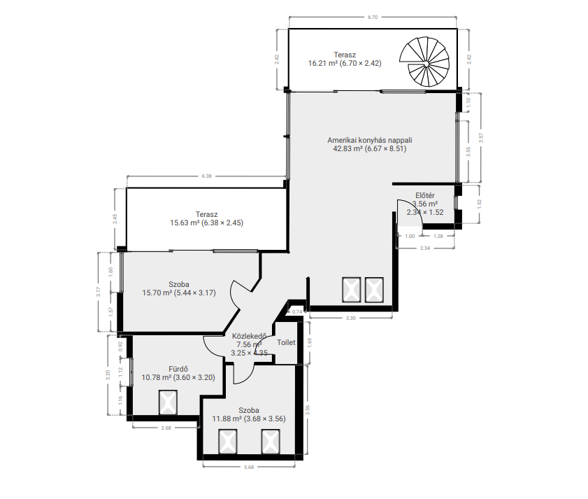
Megvételre kínáljuk ezt a II. kerületi, 2008-ban épült, 2. emeleti, nappali + 2 hálós, 87 m2-es, déli tájolású, dupla erkélyes (16 m2 + 16 m2), 72 m2-es privát tetőterasszal rendelkező, geotermikus fűtésrendszerű, padlófűtéses és mennyezeti hűtéses-fűtéses, 4 lakásos társasházban található prémium lakást, amelyhez 2 teremgarázs beálló elektromos töltővel, 1 felszíni beálló és egy 5 m2-es tároló is tartozik.
A 87 m2-es lakás átgondolt elosztása élhető, kényelmes otthont biztosít akár családnak, akár pároknak.
A déli tájolású nappali és fő hálószoba egész nap természetes fényben fürdik, a zöldre néző kilátás pedig valódi nyugalmat ad a mindennapokhoz.
Az amerikai konyhás nappali tágas, reprezentatív élettér, amely közvetlen kapcsolatban áll az egyik 16 m2-es terasszal, így a belső és külső tér harmonikusan összekapcsolódik, akár csak a fő hálószobában.
A lakás igazi különlegessége a 72 m2-es tetőterasz, ahonnan teljes panoráma tárul elénk, mely méretéből adódóan valódi élettérként használható hiszen kialakítható rajta lounge rész, étkező, napozózóna vagy akár wellness részleg is, hiszen a víz és a csatorna már fel van vezetve .
Műszaki állapota kifejezetten megnyugtató, hiszen másfél éve a teljes tető új, korszerű szigetelést kapott, amelyre új műfű került lefektetésre, emellett a hálószoba terasza is tavaly nyáron szintén új szigeteléssel és burkolattal lett gazdagabb.
A geotermikus rendszer padlófűtéssel és mennyezeti hűtés-fűtéssel biztosít energiatakarékos, modern komfortot egész évben.
A közös költség jelenleg 47.144,- Ft / hó, amely tartalmazza a közös terek villamosenergia-felhasználását, a szemétszállítást, a házbiztosítást és a közös képviselet díját.
Az ingatlanhoz 2 teremgarázs beálló elektromos töltővel, 1 felszíni beálló és egy tároló is tartozik, melyek együttes vételára 25 millió forint és kötelezően megvásárolandók a meghirdetett vételárán felül.
A 2008-ban épült, mindössze négy lakásos társasház kis létszámú, igényes lakóközösséggel működik ahol közös területek rendezettek, tiszták ennek köszönhetően nyugodt, privát életformát biztosít, nincs nagy átmenő forgalom, a lakók hosszú távra terveznek.
A II. kerület egyik csendes, kertvárosias részén helyezkedik el az ingatlanunk, ahol a beépítettség alacsony és a zöldfelület dominál, hiszen a környéken családi házak és kisebb társasházak találhatók ez által a hangulat barátságos és biztonságos.
A közelben elérhető a Francia Iskola, a Gyarmati Dezső Uszoda, valamint a Széphalom és a Hűvösvölgyi bevásárlóközpont, így az oktatás, sport és bevásárlás egyaránt kényelmesen megoldható.
A környék infrastruktúrája kiváló, ugyanakkor megmarad a természetközeli, nyugodt élettér érzése, amely a kerület egyik legnagyobb értéke.
Elsősorban azoknak ajánlom akik biztos helyen akarják tudni a pénzüket, akár befektetésnek, akár otthonuknak tudják elképzelni ezt a lakást.
Paraméterek:
Építés éve
2001 és 2010 között
Komfort
Összkomfortos
Emelet
2
Épület szintjei
3
Belmagasság
3 m-nél alacsonyabb
Légkondicionáló
Van
Fürdő és wc
Külön és egyben is
Tájolás
Északnyugat
Erkély mérete
104 m2
Kilátás
Panorámás
Kertkapcsolatos
Igen
Tetőtér
Penthouse
Parkolás
Teremgarázs hely - kötelező megvenni
Parkolóhely ára
20 MFt
Fenntarthatóság:
Közös költség
47 144 Ft/hó
Rezsi költség
Átlagos áramfogyasztás
-
Átlagos Gázfogyasztás
-
Energetikai tanúsítvány
-
Fűtés
Mennyezeti hűtés-fűtés, padlófűtés
Szigetekés
Van
Szentgyörgyvölgyi Ruben
- +36 20 400 6247
Kérdése van?
Ingyenes konzultációnk keretein belül minden kérdésére választ kaphat! Foglaljon most.











