Budapest II. kerület, Újlak
Tégla lakás
Ár
103,90 millió Ft
Alapterület
53 m2
Állapot
Jó állapotú
Szobák száma
1 + 2 fél
Leírás
Budai panorámás ritkaság!
A II. kerület egyik legkeresettebb részén, a Frankel Leó úton, a Zsigmond tér közvetlen közelében kínálunk megvételre egy hangulatos, erkélyes lakást, amely a városi kényelem és a budai zöld környezet ritka kombinációját adja.
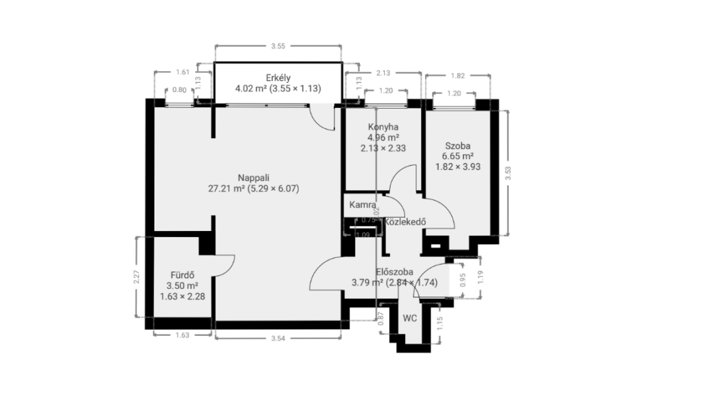
Az ingatlan egy rendezett, liftes társasház 5. emeletén található. A lakásba belépve előszobába érkezünk, balra külön mellékhelyiséggel.
Jobbra egy rövid közlekedőn keresztül jutunk el a hálószobába és a konyhába, amelyek egymás mellett helyezkednek el. Mindkét helyiség nyugati tájolású, és kellemes, zöld, fás budai panorámára néz.
A közlekedőről tovább haladva érkezünk a nappaliba, ahol szemben található a fürdőszoba, mellette pedig egy félig leválasztott dolgozórész kapott helyet, ami ideális otthoni munkához vagy tanulósaroknak.
A nappaliból nyílik az erkély is, ahonnan igazán szép, zöld lombkoronás kilátás tárul elénk.
A társasházhoz egy közös, nagy kert is tartozik, ami ritka előny ezen a lokáción, és remek lehetőséget ad kikapcsolódásra vagy egy kis „budai kertélményre” a mindennapokban.
Fontos információ, hogy a közös költség tartalmazza a fűtést, így a fenntartás tervezhetőbb.
A birtokbaadás rugalmas: az ingatlan jelenleg bérlő által lakott, azonban a bérlő éppen kiköltözőben van.
A környéken minden megtalálható, ami a kényelmes mindennapokhoz szükséges: üzletek, kávézók, éttermek, szolgáltatások és kiváló közlekedési kapcsolatok, miközben a lakás legnagyobb értéke az 5. emeleti elhelyezkedésből adódó világosság és a zöldre nyíló kilátás.
Ez a lakás ideális választás azoknak, akik a Zsigmond tér közelében, kiváló infrastruktúrával és közlekedéssel, mégis zöldre néző, erkélyes, világos otthont keresnek, extra kertkapcsolati lehetőséggel a társasházon belül.
Elsősorban azoknak ajánlom akik biztos helyen akarják tudni a pénzüket, akár befektetésnek, akár otthonuknak tudják elképzelni ezt a lakást.
Paraméterek:
Építés éve
1950 és 1980 között
Komfort
Összkomfortos
Emelet
5
Épület szintjei
6
Belmagasság
3 m-nél alacsonyabb
Légkondicionáló
Nincs
Lift
Van
Fürdő és wc
Külön helyiségben
Tájolás
Nyugat
Kilátás
Panorámás
Kertkapcsolatos
Nem
Tetőtér
Nem tetőtéri
Parkolás
Utca, közterület - ingyenes
Erkély mérete
4 m2
Fenntarthatóság:
Közös költség
20 000 Ft/hó
Rezsi költség
20 000 Ft/hó
Átlagos áramfogyasztás
150 kWh/hó
Átlagos Gázfogyasztás
45 m3/hó
Energetikai tanúsítvány
F
Fűtés
Házközponti
Szigetekés
Nincs
Földvári Benedek
- +36 31 788 9322
Kérdése van?
Ingyenes konzultációnk keretein belül minden kérdésére választ kaphat! Foglaljon most.
Kérdése van?
Ingyenes konzultációnk keretein belül minden kérdésére választ kaphat! Foglaljon most.






























