Budapest I. kerület, Logodi utca
Tégla lakás
Ár
106 millió Ft
Alapterület
70 m2
Állapot
Felújított
Szobák száma
3
Leírás
Vár alatti elegancia!
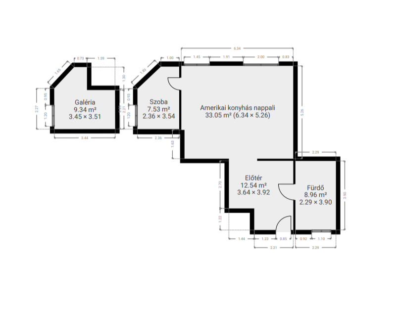
Megvételre kínáljuk egy nívós budai környezetben található, magasföldszinti, 70 m²-es, kétszintes kialakítású lakást, amerikai konyhás nappalival, két hálószobával, világos terekkel, kiváló állapottal és rendezett társasházban.
A Logodi utcában, közvetlenül a Vár alatt helyezkedik el ez az igényesen kialakított otthon.
Különlegességét a kétszintes elrendezés adja, ahol az egyik hálószoba a galérián, az emeleti szinten kapott helyet.
A nappali amerikai konyhás kialakítású, jól bútorozható, a terek arányosak és kifejezetten élhetőek.
Az ingatlan állapota kifogástalan, azonnal költözhető hiszen 2015-ben teljes körű felújításon esett át, amely magában foglalta a vízvezetékek és a villanyhálózat cseréjét, valamint egy új cirkó kazán beépítését is.
A tárolási lehetőség is biztosított, hiszen a a fürdőszoba felett egy galéria található, így a kiváncsi szemek elől elrejtve, kényelmesen lehet tárolni a nem mindennapi használatban lévő tárgyakat, értékeket.
A közös költség havi 22.869,-Ft, amely a klasszikus tételeken felül tartalmazza a víz és csatornadíjat, a szemétszállítást, valamint a felújítási alapot is.
A rezsiköltségek összességében kedvezően alakulnak, hiszen az áram átalánydíja 4.500,-Ft / hó , a gáz pedig 6.000,-Ft / hó
A társasház rendezett, igényes lakóközösséggel rendelkezik.
A környék presztízsértékű, mégis nyugodt, a közeli Vérmező pedig kiváló lehetőséget kínál sétára, futásra vagy kikapcsolódásra.
Elsősorban azoknak ajánlom akik biztos helyen akarják tudni a pénzüket, akár befektetésnek, akár otthonuknak tudják elképzelni ezt a lakást.
Paraméterek:
Ingatlan állapota
Felújított
Építés éve
1950 előtt
Komfort
Összkomfortos
Emelet
Földszint
Épület szintjei
3
Belmagasság
3 m-nél magasabb
Légkondicionáló
-
Fürdő és wc
Egy helyiségben
Tájolás
-
Akadálymentesített
-
Kilátás
Utcai
Kertkapcsolatos
-
Tetőtér
Nem tetőtéri
Parkolás
Utca, közterület
Fenntarthatóság:
Közös költség
Rezsi költség
Átlagos áramfogyasztás
-
Átlagos Gázfogyasztás
-
Energetikai tanúsítvány
-
Fűtés
Gázkazán
Szigetekés
-
Szentgyörgyvölgyi Ruben
- +36 20 400 6247
Kérdése van?
Ingyenes konzultációnk keretein belül minden kérdésére választ kaphat! Foglaljon most.









